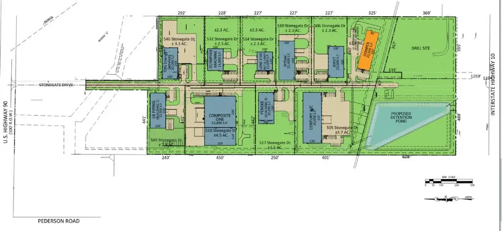
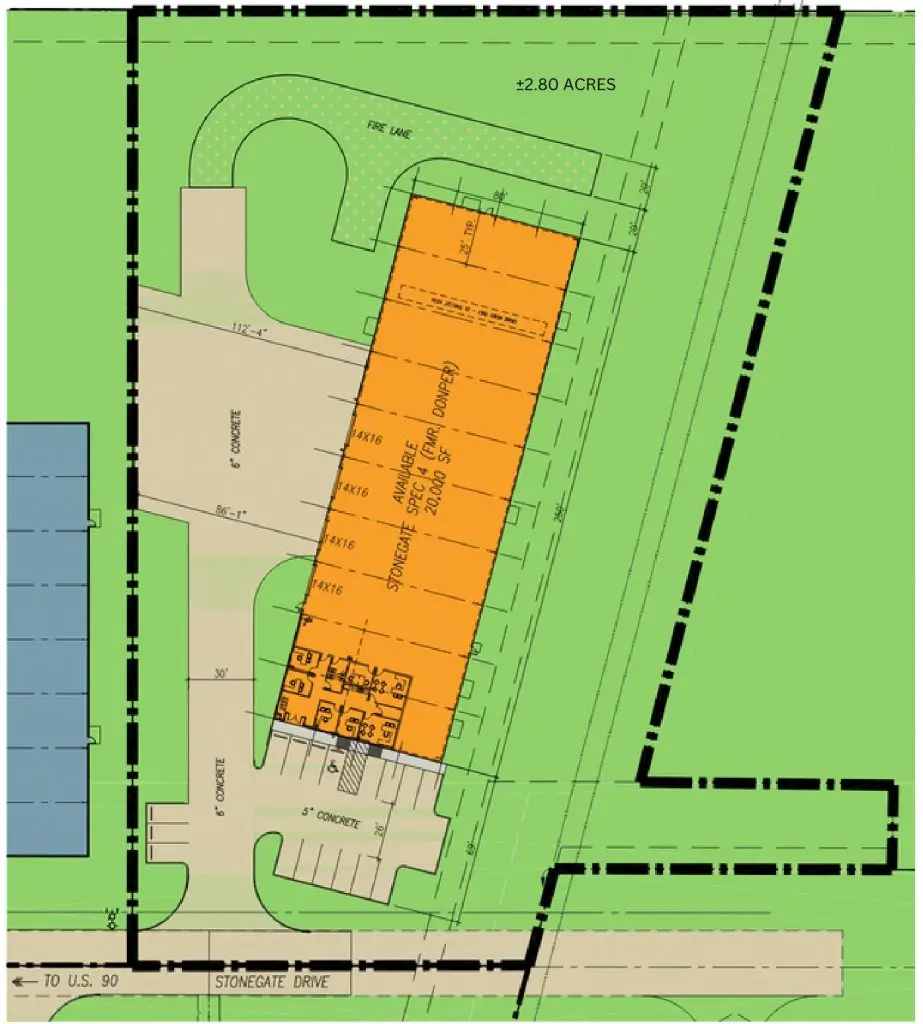
500 Stonegate
Katy, Texas 77494

Stonegate Business ParkĀ 

for additional information, please contact:

Copeland Rhea + Charlie Christ

+1 713 789 2529

crhea@claydevelopment.com

Leasing Flier Download

Specs

Building Type

Eave Height

Total Building Size

Land

Office

Industrial & Office

28′

20,000 SF

2.80 acres

1,934 SF

Power

Sprinkler System

Cranes

Parking

600 Amps

Wet

20-Ton Ready

17 Car ParksĀ