23.73 acres
brookshire, tx 77423

11th Street Brookshire

for additional information, please contact:

Copeland Rhea + Charlie Christ

+1 713 789 2529

crhea@claydevelopment.com

Leasing Flier Download

Highlights

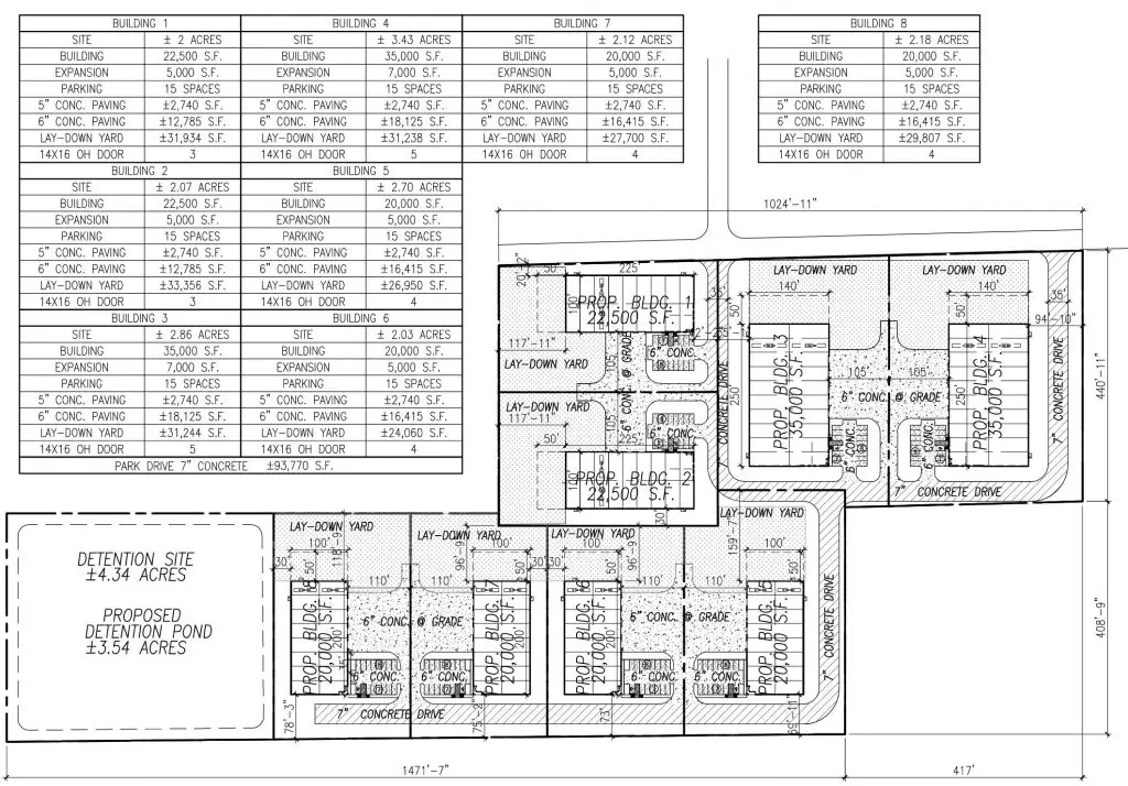
  • Up to ± 23.73 acres available for design-build or build-to-suit distribution or manufacturing buildings
  • Sites from 2 acres to 3.43 acres
  • Buildings from 20,000 SF to 42,000 SF
  • Laydown yards from 24,060 SF to 33,934 SF
  • Crane ready buildings
  • ESFR available
  • Located at the intersection of Interstate 10 and Waller Avenue
  • Excellent access to Interstate 10, Grand Parkway 99, and Beltway-8
  • 37 miles to Downtown Houston
  • Located within Waller County
  • Deed restricted park with professional management